Wohnen an der Kander
Bauherr: Gemeinde Eimeldingen
Planung: wilhelm und hovenbitzer, Freie Architekten BDA
2021 Wettbewerb 1. Rang
Wettbewerb: 2021
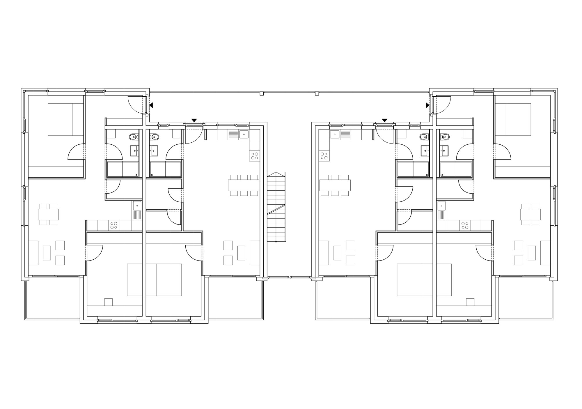
Die Gemeinde Eimeldingen hat eine Mehrfachbeauftragung für die Bebauung eines Grundstücks zwischen dem Fluß Kander und der Trasse der Bundesbahn ausgeschrieben. Der Vorentwurf sieht eine Hofbebauung vor, die sich in das schmale Grundstück einfügt und gleichzeitig den Lärm der Bahn abschirmt. Dem Wunsch der Gemeinde nach
preiswertem Wohnungsbau, wird durch 3-geschossige Bauten ohne Aufzug, ohne Tiefgarage aber mit großzügigen Grundrissen, guter Infrastruktur und schöner Architektur beantwortet.




