Uehlin Haus Schopfheim
Bauherr: Atmos 4, Karlsruhe
Planung: wilhelm und hovenbitzer, Freie Architekten BDA
Wettbewerb 1. Rang
Wettbewerb 2021
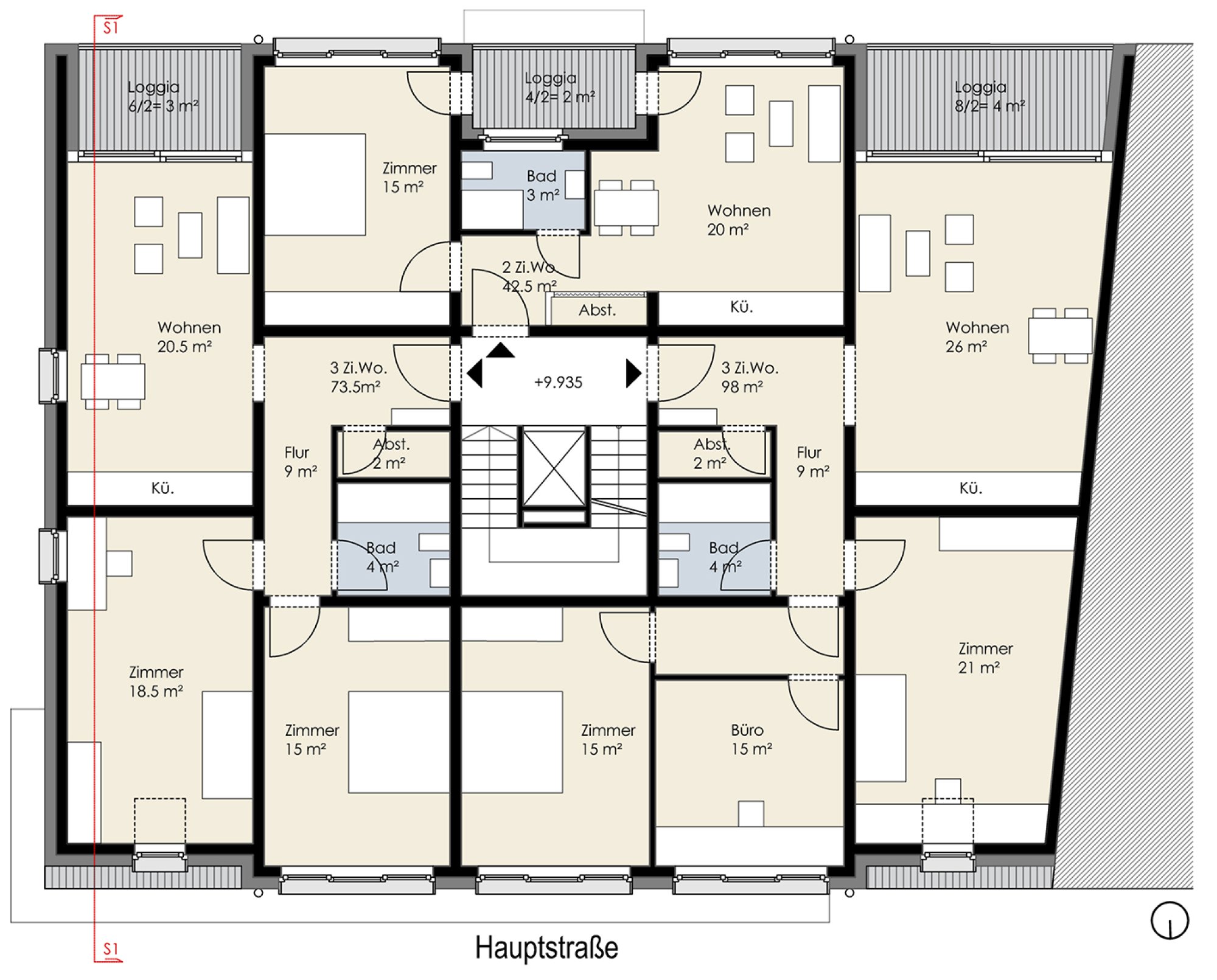
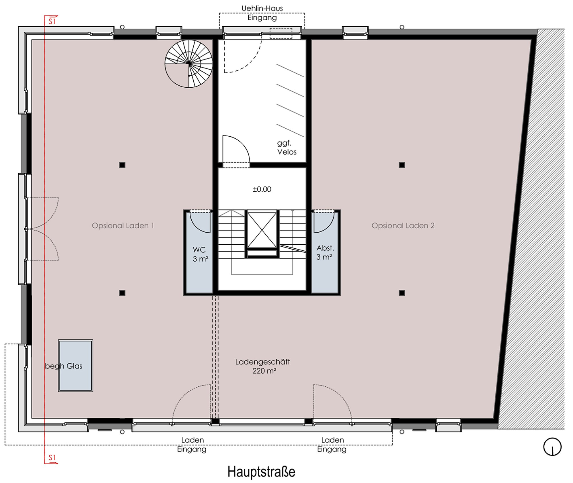
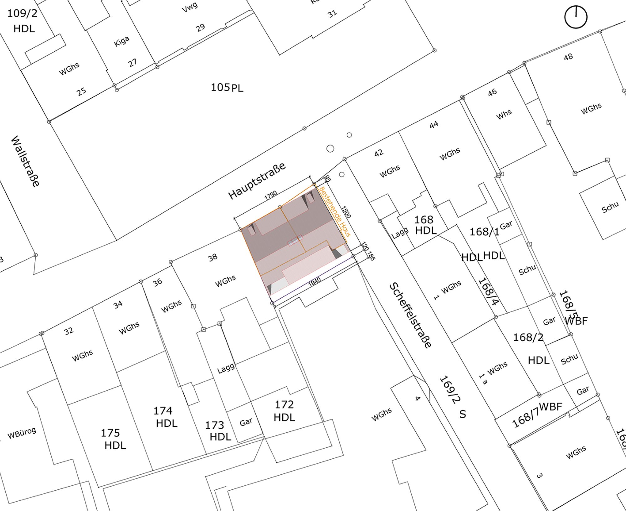
Das „UEHLIN-HAUS“ wird neu interpretiert. Die Architekturform generiert sich aus der Nachbarschaft und vor allem der notwendigen Platzwand. Das Haus muss sich in die Hauptstraße und im Gegenüber zum Rathaus im Weinbrennerstil einfügen.
Der geplante Neubau nimmt das Thema des Zwerchgiebels des westlichen Hauses auf und interpretiert dies neu. Die Fassade ist in mineralischem Kratzputz, die Fenster in Eiche oder Holz/Alu, das Dach mit Ziegel oder Kupfer-/ Titanzinkblech wie im städtebaulichen Konzept vorgeschrieben angedacht. Ein Stadtbaustein muss entstehen, der die Gebäudefluchten komplettiert und sich optimal in den Straßenraum einfügt, gleichzeitig aber auch den Zugang zur Scheffelstraße öffnet.








