Wohnhochhaus Leibnizweg Lörrach
Bauherr: Städtische Wohnbaugesellschaft mbH
Entwurf: Arbeitsgemeinschaft wilhelm und hovenbitzer mit Büro Moser, Lörrach
Fertigstellung: 2017
Publikationen: werk, bauen, wohnen, 9/16 “Wohnhochhaus in Lörrach; Anspruch auf Augenhöhe”, Verlag Werk AG, Zürich 2016
Fotografie: Atelier Altenkirch, Karlsruhe
Auszeichnung: BDA Preis Hugo-Häring Auszeichnung 2017 / Architektenkammer Baden Württemberg “Beispielhaftes Bauen Landkreis Lörrach 2019”
Die Stadtzufahrt Lörrach’s von Süden wurde markant durch den Neubau gestaltet.
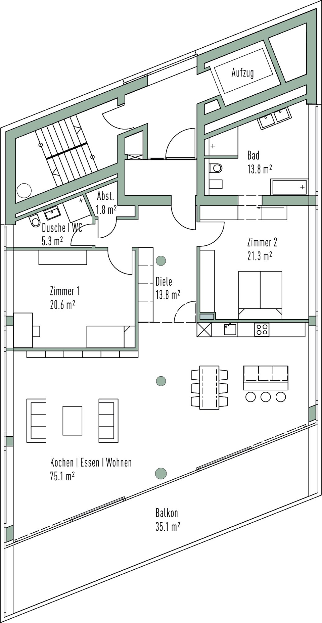
Der schlanke Baukörper hat 16 Geschosse und ein Dachgeschoss bzw. insgesamt 19 Wohnungen. Die grossen Wohnungen umfassen jeweils die vollständige Etage: Dadurch entsteht hohe Individualität und eine besondere Belichtungssituation nach Osten, Süden und Westen. Die offene Struktur und der loftartige Charakter der Grundrisse ermöglichen eine flexible Gestaltung und lassen die Großzügigkeit der Architektur spüren.








