Synagoge Lörrach
Entwurf, Planung, Bauleitung: wilhelm und hovenbitzer und partner
Fertigstellung: 2008
Auszeichnung: 2012 Preis Beispielhafte Bauen Architektenkammer Baden Württemberg
Publikationen: Chris von Uffelen: “sacred, architecture & design;Synagogue”; Braun 2014
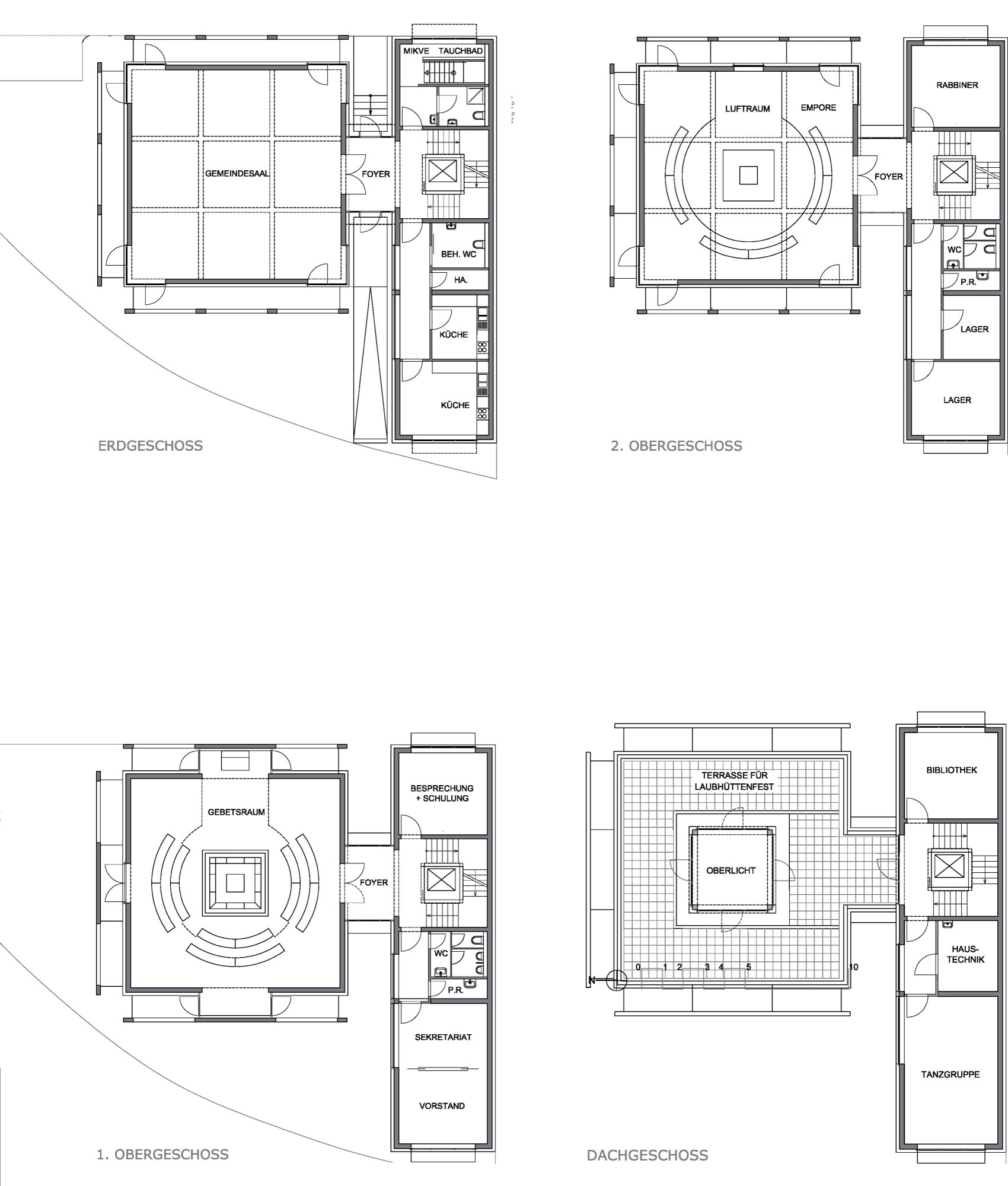
Wir wollten keine jüdische Architektur erfinden, sondern eine eigene, zeitgenössische Architektur mit jüdischen Bezügen generieren. Der Symbolwert dieser Synagoge bedeutete für uns Toleranz, Offenheit und Konzentration nach innen und außen. Wir haben den Ort und die Aufgabe mit einem würfelförmigen Kultbau belegt. Die Grundform des Quadrats soll als Integrität, der eingeschriebene Kreis der Frauenempore als die Unendlichkeit und der Kubus selbst als Autonomie verstanden werden. Der Kubus wird von einer zweiten Schale aus Sichtbetonscheiben umgeben. Diese Schale, einer Zwiebel vergleichbar, ist Schutzschild und Bedeutungsträger durch die angedeuteten jüdischen Symbole in geometrischen Spielformen des Davidsterns. Der Synagogenraum selbst ist als präziser Zentralraum entworfen worden. Der Almemor liegt in der Mitte, der Thoraschrein in einer mit Seitenlicht versehenen Ostnische und der Innenraum wird bekrönt von einem ebenfalls würfelförmigen, zenitalen Oberlicht. Die Frauenempore ist kreisrund mit einem offenen Teil nach Osten und verstärkt durch ihre Form das Zusammensein. Die segmentförmigen Bänke umgreifen den Almemor wie Hände einen Schatz.




