Kantonsspital Liestal - Schweiz
Bauherr: Kantonsspital Liestal – Schweiz
Planung: wilhelm und hovenbitzer, Freie Architekten BDA
Dauer: 12-2009
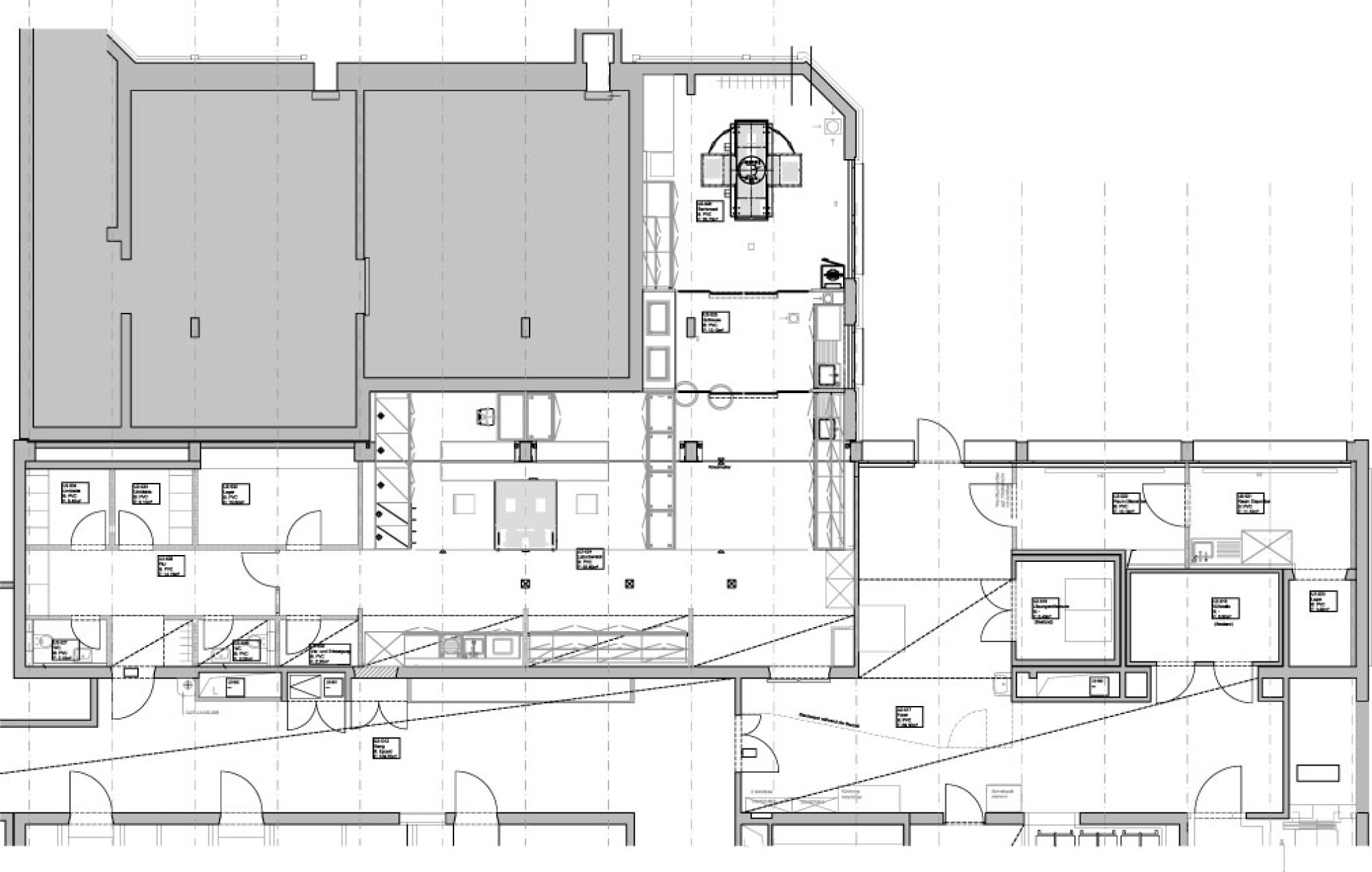
Der Umbau und die Sanierung des Bereichs Pathologie, Seziersaal des Kantonsspital Liestal / Schweiz stellt einen grundlegenden Rückbau der Räumlichkeiten aus den 60er Jahren dar. Eine vollständige Neuausbildung der Räume inklusive Laboreinrichtung führt zu optimalen Arbeitsabläufen mit sauberer Trennung von Labor- und Bürotätigkeiten, einschliesslich zusätzlicher Neugestaltung des Sanitärbereichs, bzw. der dazugehörigen Garderoben. Die Einrichtung mit komplett erneuerten haustechnischen Anlagen stellt hervorragende Arbeitsbedingungen her, bei denen durch einen neuen Seziertisch und zeitgemässe Sicherheitswerkbänke mit Abzugsanlagen die Gesundheitssicherheit der Mitarbeiter gewährleistet ist. Hier ist die Ausbildung von verschiedenen Druckzonen, bzw. -schleusen als wesentliche Massnahme zu erwähnen. Die Gestaltung der Einrichtung im Seziersaal in Edelstahl, einschliesslich des rundum höhenverstellbaren und drehbaren Seziertisches, schafft beste hygienische und ergonomische Arbeitsgrundlagen.


