Synagoge Konstanz
Entwurf, Planung: wilhelm und hovenbitzer Freie Architekten BDA
Fertigstellung: 2019
Auszeichnung: Nominierung DAM, deutscher Architekturpreis 2020
*Auszeichnung:*German Design Award Special 2022
Fotograf: Manuel Martini / Konstanz
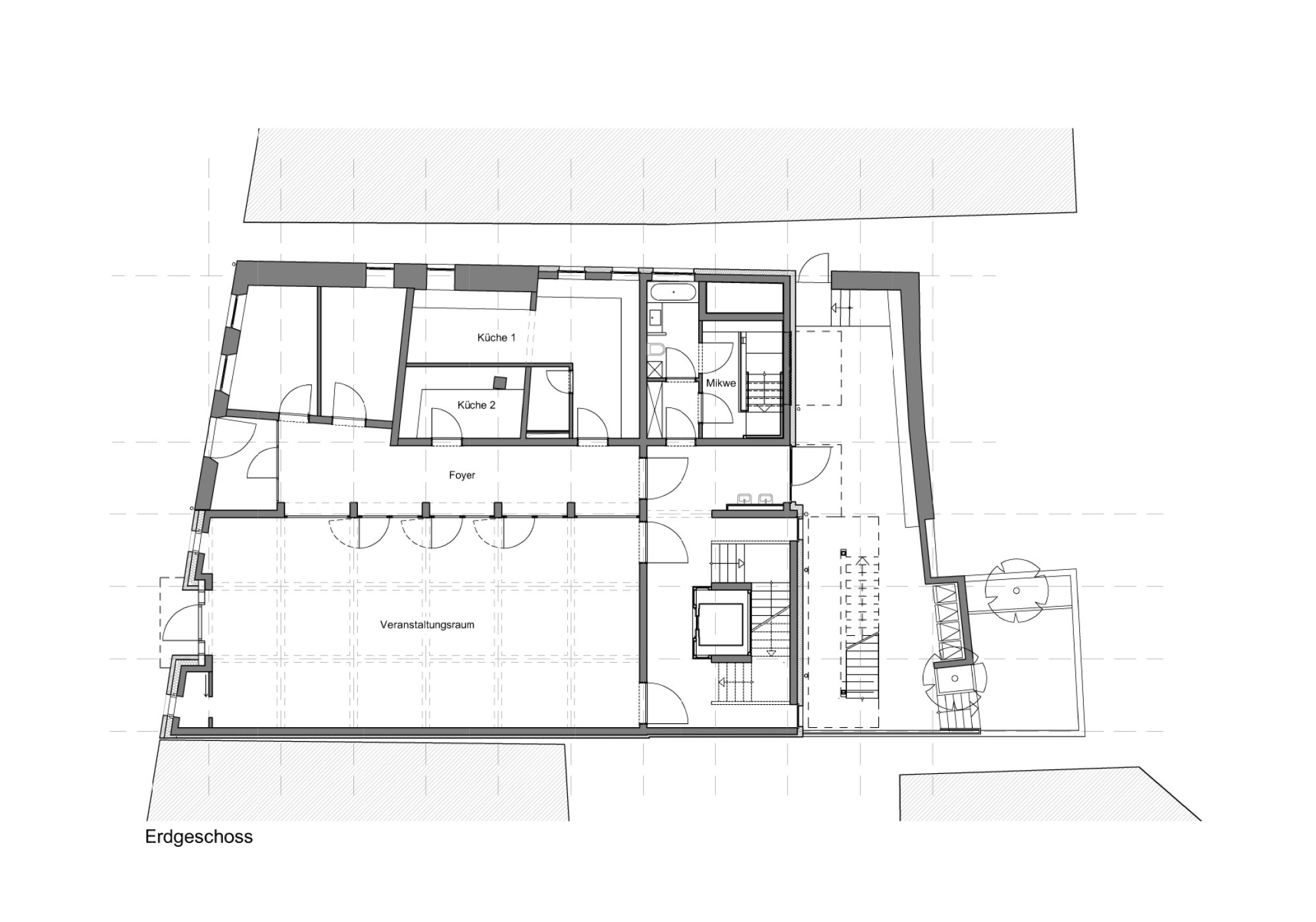
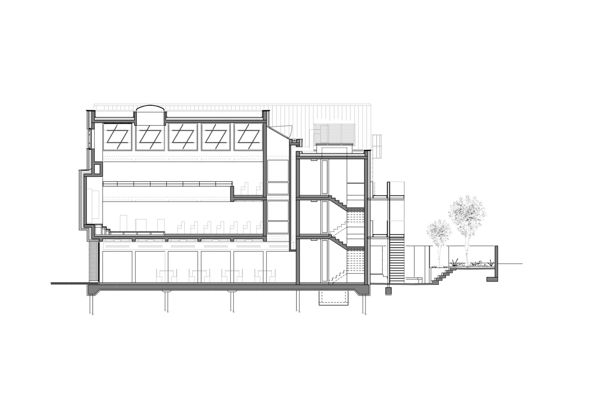
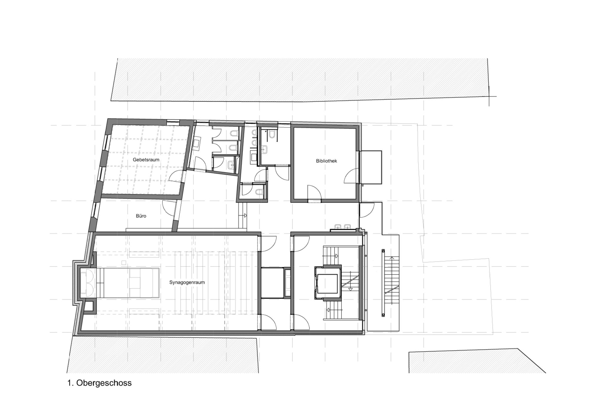
In der Altstadt von Konstanz, in der Sigismundstraße, 120 Meter entfernt von der ehemaligen Synagoge, ist eine neue Synagoge entstanden. Das benachbarte denkmalgeschützte und einsturzgefährdete Haus „Zum Anker“ wurde miteinbezogen und komplett saniert. In die neun Meter breite Baulücke ist die neue Synagoge eingefügt. Im benachbarten, komplett umgebauten Altbau wurden die dienenden Räume untergebracht. Ein räumliches Miteinander entstand. Die beiden Bauten vervollständigen den Straßenraum, eine Stadtreparatur entstand. Die Neue Synagoge stellt sich Seite an Seite in die Sigismundstraße und zeigt eine Architektur mit jüdischen Bezügen. Die Fassade wird durch sehr flache Ziegel in drei Farben strukturiert; der Thoraschrein bildet sich in der Fassade plastisch ab. Das quadratische Ost – Fenster erhielt einen Davidstern. Der Altbau „Zum Anker“ wurde denkmalgerecht verputzt. Die Synagoge selbst liegt im ersten OG des Neubaus, ist zweieinhalbgeschossig mit Obergartenfenstern nach Süden und Norden. Die Frauenempore legt sich u-förmig um die Thoraschreinwand. Die klare, helle Architektur wurde bauseits mit in Israel gefertigten Einbauten und Möbeln versehen. Diese kontrastieren zur modernen Architektur. Im besten Falle kann ein Zwiegespräch entstehen. Im Erdgeschoss ist ein großer Verssammlungsraum mit 100 qm und den dazugehörigen Nebenräumen und auch die Mikwe entstanden. Im Hof ist ein Platz für das Laubhüttenfest ausgewiesen. Der Bau wurde am 10. November 2019 im Beisein von Ministerpräsident Kretschmann eingeweiht











