EFH S in Lörrach
Bauherr: EFH , S in Lörrach
Planung: wilhelm und hovenbitzer, Freie Architekten BDA
Fotografie: Thomas Richard Krauss / Lörrach
Dauer: 2019
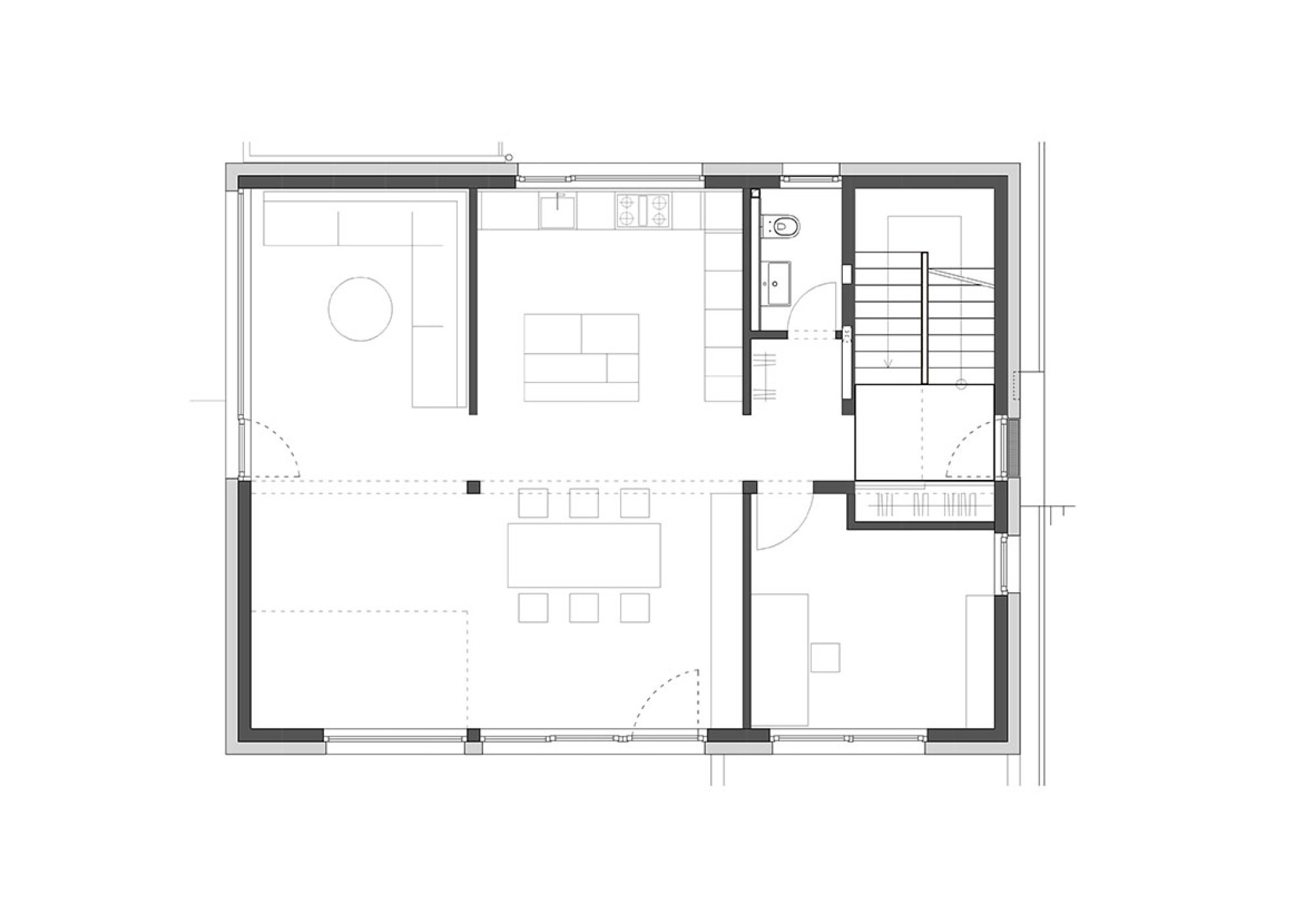
In einem bestehenden Wohngebiet wird durch das freistehende EFH eine Nachverdichtung realisiert, die einen eigenständigen und markanten städtebaulichen Akzent setzt. Zwei Überhöhungen, beim Treppenhaus an der einen Gebäudeecke und dem Wohn- bzw. Luftraum an der gegenüberliegenden Gebäudeecke, setzen nicht nur Hochpunkte im Strassenraum, sondern auch räumliche Höhepunkte im Innern. Zwischen den zweigeschossigen Räumen spannen sich die Nutzungen der Wohngeschosse auf. Ein- und Ausblicke werden gezielt auf die städtebauliche Situation ermöglicht oder unterbunden.








