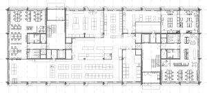
Novartis Pharma AG, Basel - Schweiz / 2
Entwurf, Generalplanung: wilhelm und hovenbitzer und partner
Fertigstellung: 2013
In einem bestehenden Bau wurde ein grosses Geschoss mit einer Pilotforschungsanlage (PDA) ausgebaut. Es galt, die hochtechnisierten Anlagen in ein räumliches Konzept zu überführen, das nicht nur maximale Funktionalität, sondern auch gut gestaltete Arbeitsplätze gewährleistet. Technische Strukturen wurden genutzt, um räumliche Ordnung zu schaffen, Farbgebung und Licht, um eine positive Arbeits- und Forschungsatmosphäre zu erzeugen.



