Quartier Südlich Ötlinger Strasse
Wettbewerb: Quratier Südlich Ötlinger Strasse 1. Rang Mehrfachbeauftragung
Planung: wilhelm und hovenbitzer, Freie Architekten BDA mit Moser Architekten BDA Lörrach
Dauer: 2021
Insgesamt wird ein lebendiges neues Stadtquartier geschaffen, das an der Nahtstelle verschiedener Stadtbereiche die angrenzenden Strukturen aufnimmt und in einem vielfältigen Gemenge verbindet.
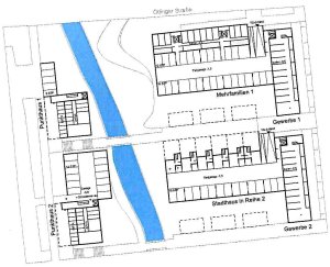
Der Grünraum um den erlebbar gemachten Gewerbekanal bildet innerstadtnah einen Erholungsbereich für alle angrenzenden Quartiere.
An der Hangkante zur Wiesenaue gelegen, mit schöner Aussicht nach Westen und Süden in den Landschaftsraum „Tüllinger“ und nach Basel entsteht ein hochwertiger Wohnstandort mit einer gemischten Bebauung und vielfältigen Wohnnutzungen. Innerhalb der einfach orthogonalen Anordnung werden nicht nur wechselnde Freiraumqualitäten geschaffen, sondern auch variable und innovative Wohnformen ermöglicht (Mehrgenerationenwohnen / Stadthäuser / Familien , Loft etc.)
Eine besondere Qualität des Konzepts stellt schrittweise und kleinteilige bauliche Gliederung da, die nicht nur den verschiedenen Eigentumsverhältnissen und funktionalen Anforderungen gerecht wird, sondern auch durch die gestaffelte Umsetzung in kleinen Teilen eine gestalterische und funktionale Vielvalt gewährleistet.



