Neubau eines Gemeinschaftszentrums, Neumatt
Entwurf, Planung, Bauleitung: wilhelm und hovenbitzer
Bauzeit: 03.18- 11.2018
Bauherr: Wohnbau Lörrach
Auszeichnung: Architektenkammer Baden-Württemberg “Beispielhaftes Bauen Landkreis Lörrach 2019”
Auszeichnung: Nominierung Wüstenrotstiftung – Gebaute Orte der Demokratie”
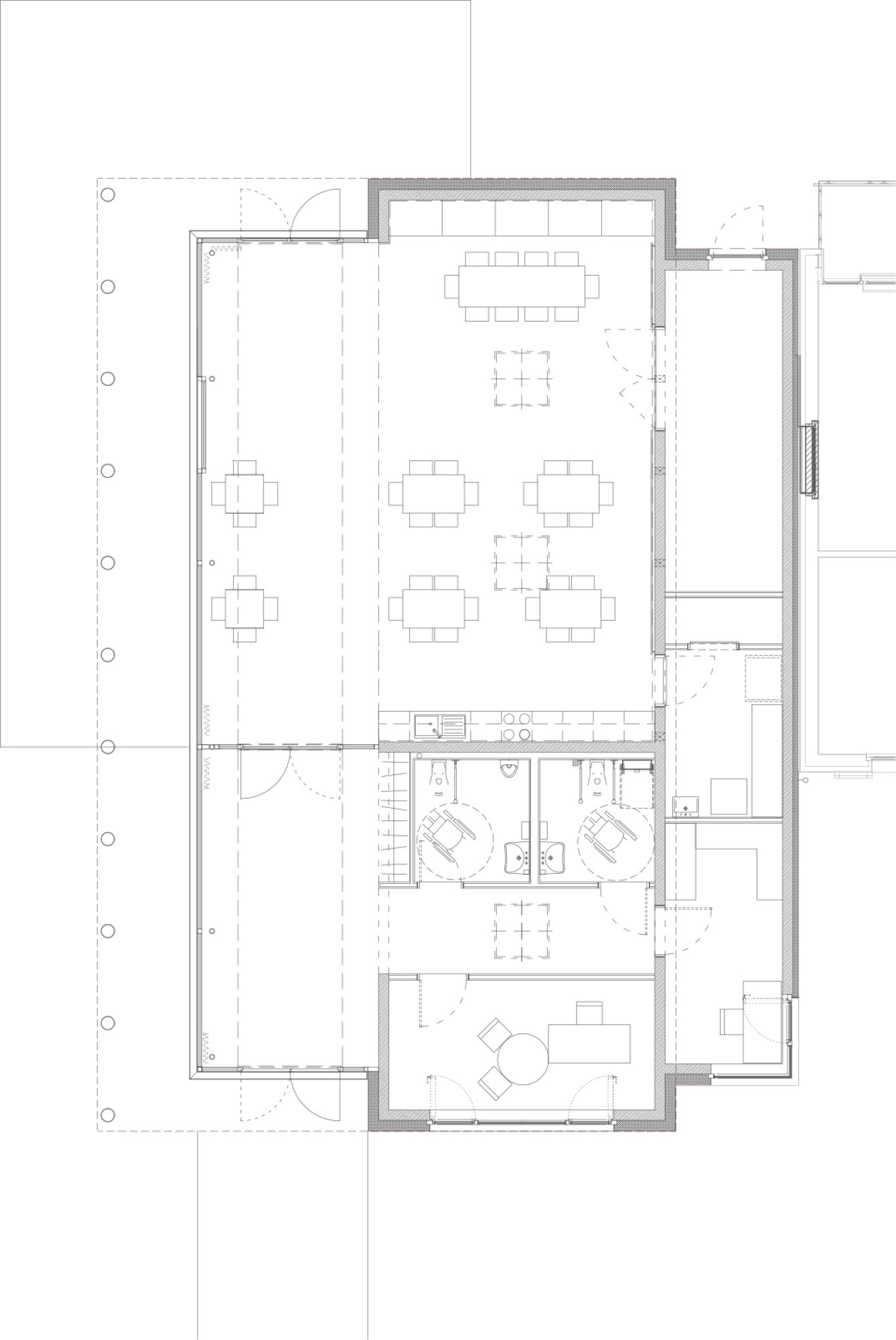
In einem Wohnquartier in Zeilenbauweise aus den 50er und 60er Jahren wurde zurückhaltend ein Gemeinschaftszentrum im offenen Grünbereich zwischen den bestehenden Gebäudekörpern platziert. Der Gemeinschaftsraum, der dem Quartier für Feste, Sozialarbeit und als Nachbarschaftstreffpunkt dient, öffnet sich grosszügig in den verbindenden Grünbereich und stellt einladend Sichtbezüge zwischen Innen und Aussen her. Aussen zurückhaltend gestaltet, bieten sich innen helle Räume in einer Materialcollage aus Holz, Sichtbeton und weissen Putzflächen.





