Mehrfamilienhaus Holzgeschossbau Lörrach
Planung: wilhelm und hovenbitzer und partner
Fertigstellung: 2017
Bauherr: Städtische Wohnbaugesellschaft
Auszeichnung: Architektenkammer Baden – Württemberg “Beispielhaftes Bauen Landkreis Lörrach 2019
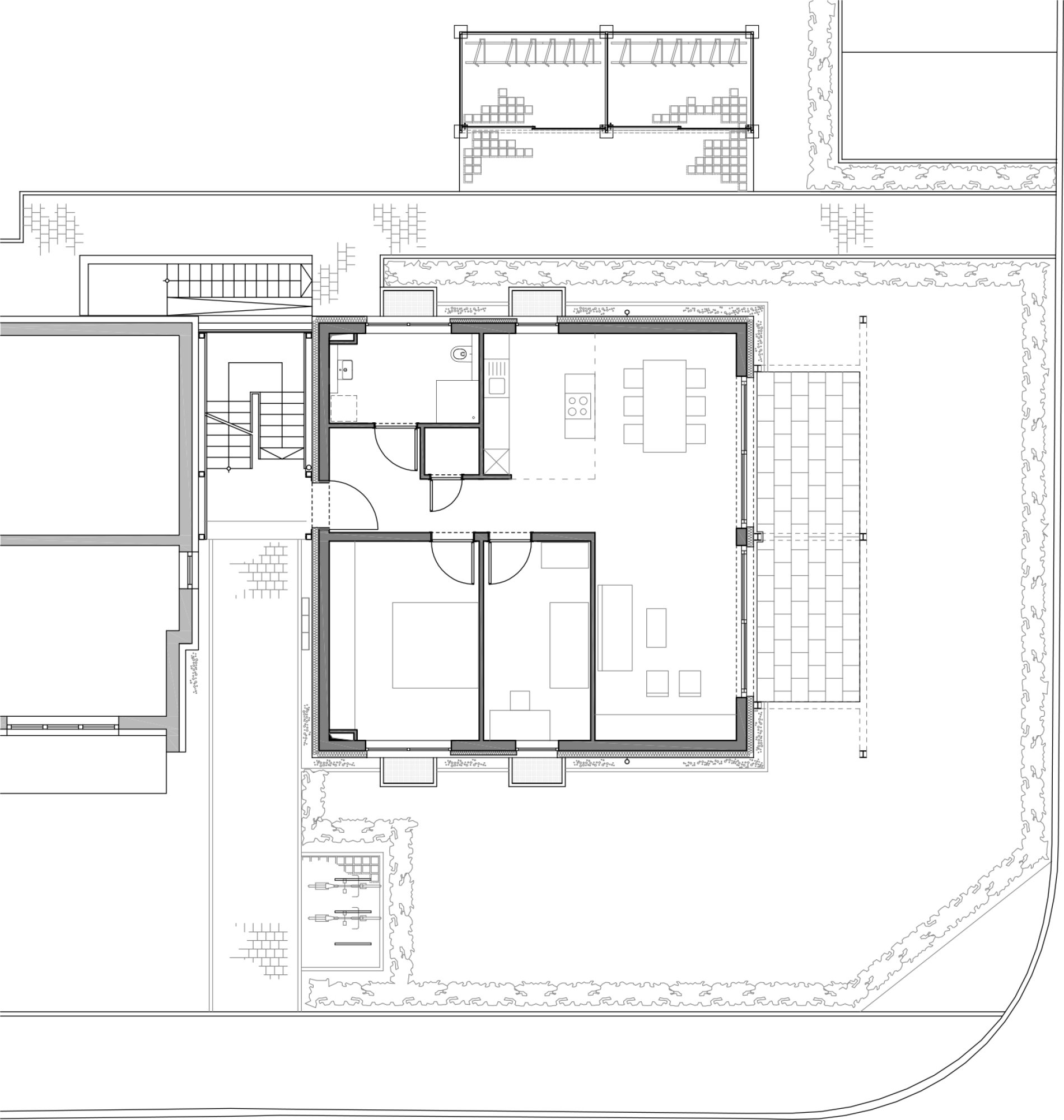
Das Gebäude ist als erstes reines Holz-Mehrfamilienwohnhaus in Geschossbauweise 5-geschossig in Lörrach geplant. Alle Obergeschosse bestehen aus vorfabrizierten Holzelementen. Unabhängige Stahlkonstruktionen für Balkone und das aussenliegende Treppenhaus schaffen Bezüge zur Architektur des Quartiers und sichern die brandschutztechnische Erschliessung und Rettungswege bei diesem Holzbau der Gebäudeklasse V. An der Haagener Strasse in Lörrach, in einem Zeilenbaugebiet der 50er und 60er Jahre schafft der Baukörper eine städtebauliche Nachverdichtung und neue Adresse.









