Wochenendhütte im Wald, Molchow, Neuruppin, Brandenburg
Entwurf, Planung: wilhelm und hovenbitzer und partner
Fertigstellung: 2010
Wohnfläche: 70 qm
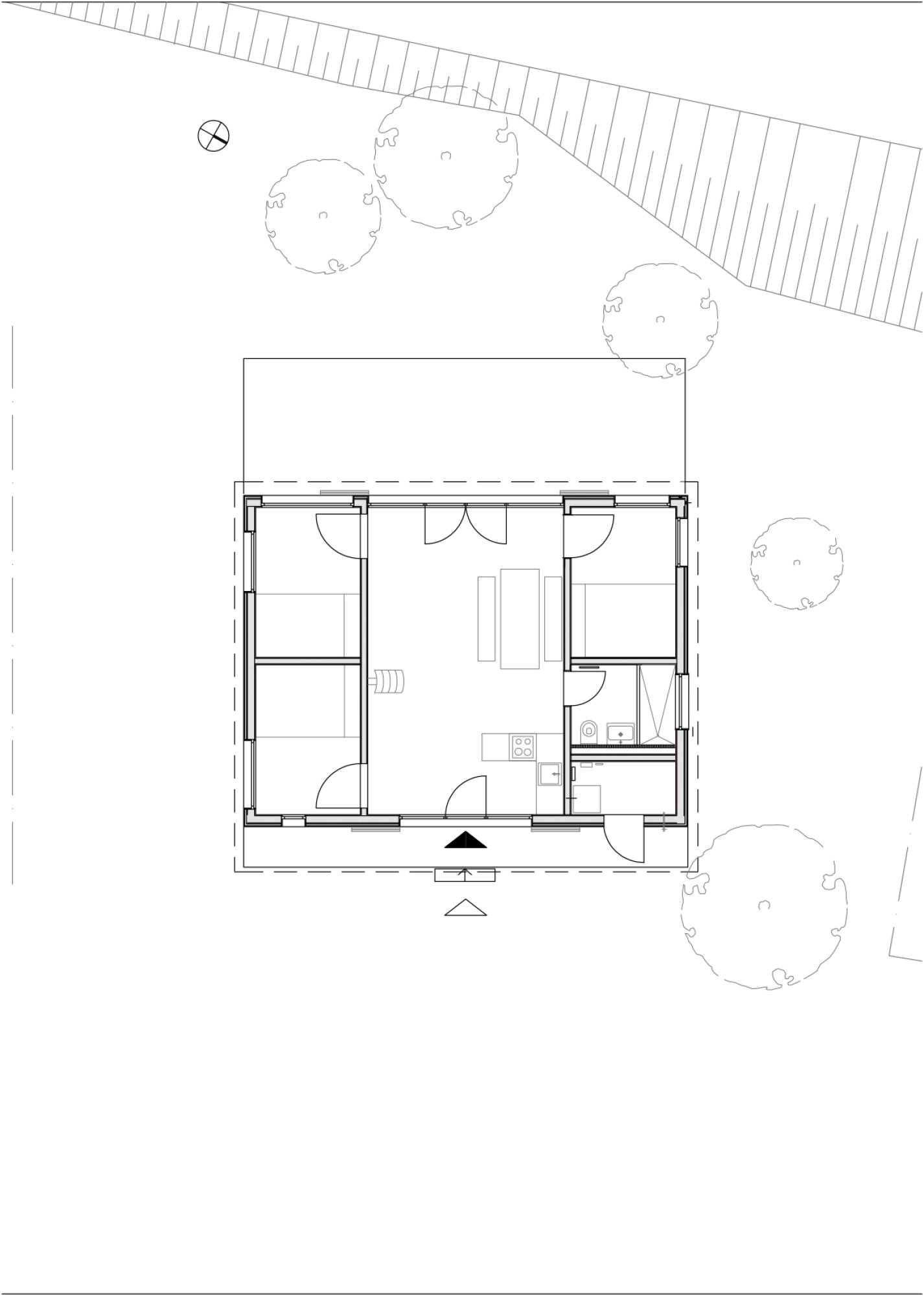
Auf einem 3000 qm großen Waldgrundstück, unweit der Fontanestadt Neuruppin, wurde nahe am See ein kleines Wochenendhaus “schwebend” über dem sandigen Waldboden in Holzbauweise erstellt. Ein zentraler Wohnraum mit Kochzeile bildet das Herz des Hauses. Es ist Ost-West orientiert und lässt von beiden Seiten den Wald erleben. 3 kleine Schlafkammern für mind. je 2 Personen und das Bad sind dem Zentralraum angefügt, mit Ausblick in den Wald durch je 2 Fenster. Vorgelagert ist im Westen, zur Abendsonne hin, eine Holzterrasse. Das Haus wird über den zentralen Holzofen beheizt; die Wandkonstruktion ist hoch wärmegedämmt und außen mit unbehandeltem Douglasienholz verkleidet. Die horizontale Schalung steht im Kontrast zu den vertikalen Baumstämmen und gibt dem kleinen Haus einen Kontrapunkt zum Wildwuchs des Waldes. Das Wochenendhaus entstand in enger Zusammenarbeit mit den Bauherren, der Berliner Interior Designerin Katja Söchting und des Künstlers Jörg Söchting.




