Um- und Anbau Kantonales Institut für Pathologie Kantonsspital Liestal (CH)
Entwurf, Planung, Bauleitung: wilhelm und partner
Bauzeit: 2004 – 2006
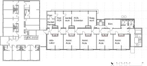
Das Projekt sieht die Umnutzung des “Personalhaus Kantonsspital” zum “Kantonalen Institut für Pathologie” vor.
Der bestehende Gebäudeteil aus den 50er Jahren wird entsprechend umgebaut, im Nordwesten wird ein Neubauteil angefügt. Zur Sicherstellung der Rettungswege wird im Süden ein neues Fluchttreppenhaus angefügt.
Es bildet den neuen Haupteingang zum Institut. Das Gebäude- und Haustechnikkonzept ist auf hohe Funktionalität bei möglichst einfacher und wirtschaftlicher Ausführung angelegt. Es entstehen moderne Labors, die allen Sicherheits- und Hygienevorschriften des Krankenhausbetriebes entsprechen.






