Logistikzentrum Geiger Textil GmbH, Bad Säckingen
Entwurf, Planung, Bauleitung: wilhelm und hovenbitzer
Fertigstellung 2016
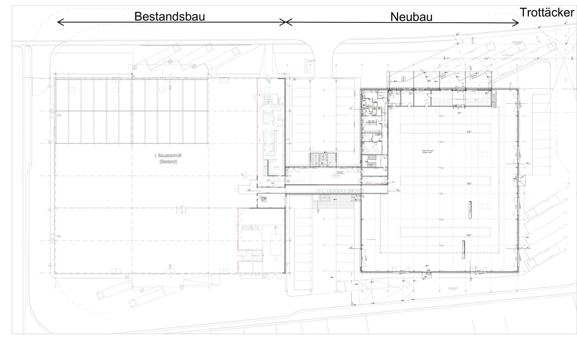
Der Erweiterungsbau bildet mit dem Altbau einen Eingangshof .In der zweigeschossigen Querspange von 21× 7,5 m wurden die Empfangs- und Schulungsräume untergebracht. Ein Technikflur verbindet Alt-und Neubau. Das Hauptgebäude mit 51 × 44 m ist 10,5 m hoch und größtenteils eine Stahlkonstruktion mit einer äußeren Wärmedämmung und einer speziell entwickelten Außenhaut aus rhythmisch gesetzten, feinen Wellprofilen, die horizontal auf Lisenen, die auf die Fensteröffnungen bezogen sind, Bezug nehmen. Die Baukörper bilden zusammen mit dem Altbau eine neue, einladende Komposition und geben Geiger-Textil eine eigene Adresse.




