Hotel Gasthof Traube, Blansingen , Sanierung / Erweiterung / Neugestaltung
Entwurf, Planung, Bauleitung: wilhelm und hovenbitzer und partner
Fertigstellung: 2008
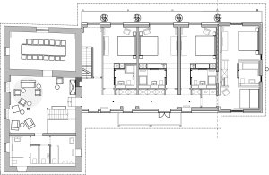
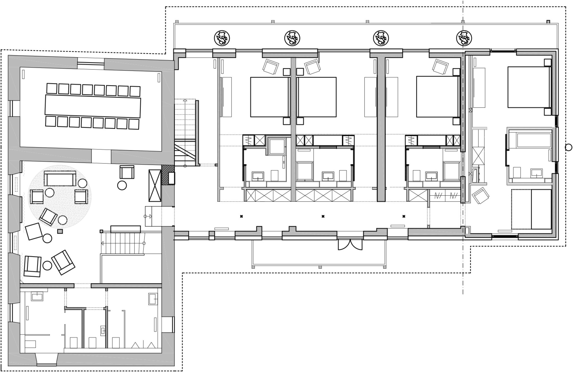
Nach einem Besitzerwechsel wurde der historische Gasthof saniert und innen neu gestaltet. Durch Ausräumen der bestehenden Wohnung und durch Weiterbauen nach Süden sind 9 verschiedene, individuelle Zimmer und Suiten entstanden mit hohem Komfort und besonderer Atmosphäre. Im 1.Obergeschoss ist ein neues Foyer entstanden, im 2. Obergeschoss eine Sauna- und Fitnessbereich. Aktuelle Technik wurde integriert. Möbel wie Betten, Schränke, Tische sowie die Theke in der Gaststube wurden speziell entworfen und vom Schreiner gefertigt. Handwerker aus der näheren Umgebung leisteten –koordiniert durch die Architekten – trotz engem Zeitraum, qualitätvolle Arbeit. Bis zu den Accessoires wurde die gesamte Einrichtung geplant.




