Evangelische Kirchengemeinde - Johannesgemeinde, Lörrach
Entwurf: wilhelm und hovenbitzer und partner
Wettbewerb: 2012, 1. Preis Evangelische Kirchengemeinde, Lörrach
Aufnahme: 2016, Exposition Trinationale, Maison européenne de l’architecture
Fertigstellung: 2015
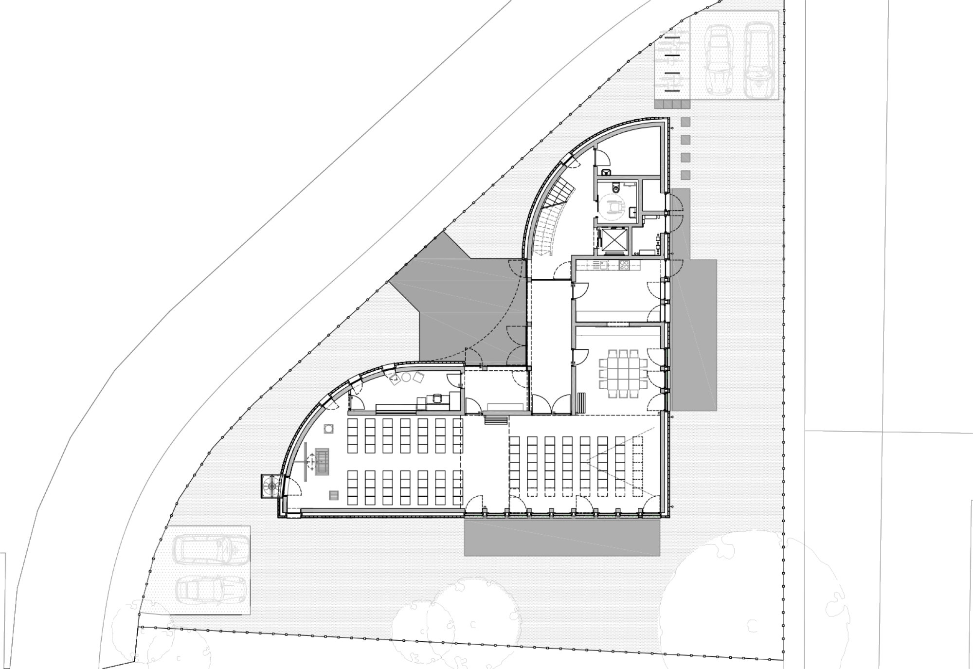
Die Analyse der Situation (Terrainzuschnitt, Nachbarschaft, Massenverteilung, Erschließung) und die Aufgabenstellung (Bedeutung des Bauwerks, Identität, Ausstrahlung, Spiritualität) führt zum Architektenentwurf. Der kraftvolle, einprägsame Baukörper muss sich gegenüber den Wohnbauten und besonders den nördlichen angrenzenden Verkehrsbauten behaupten.
Dies geschieht durch einen gemeinsamen „gemauerten“ Bau für Gemeindezentrum und Sakralbau. Ein heller plastischer Klinkerkörper mit Schattenspiel und deutlicher Überhöhung des Sakralraums kann diesem Ort, für diese Aufgabe, am ehesten entsprechen.














