Erweiterung Gymnasium Achern Mensa und Räume für Ganztagesbetrieb
Entwurf, Planung: wilhelm und hovenbitzer und partner
Fertigstellung: 2010
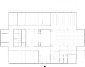
Der Mensaneubau bildet mit dem bestehenden Gymnasium und der Dreifachsporthalle
einen U-förmigen Eingangshof und ergänzt den Campus. Der Versammlungsraum ist für 320 Personen bei Mensabetrieb bzw. 450 ausgelegt Der anschließende Musikraum ist als vollwertige Bühne ausgestattet worden. Nach Osten, der Schule zugewandt, liegen Eingang mit Foyer und die Lern und Kreativwerkstätten. Nach Süden sind die 4 Proberäume und nach Westen – zur freien Landschaft – die Ruhe und Gruppenräume orientiert.







