Einfamilienhaus Z in Lörrach
Entwurf Planung: wilhelm und hovenbitzer und partner
Fertigstellung 2015
Publikationen AIT, Architektur / Innenarchitektur / Technik, 12/2016 “Innen / Aussen; Wohnhaus in Lörrach” Verlag A. Koch, Leinfelden-Echterdingen 2016
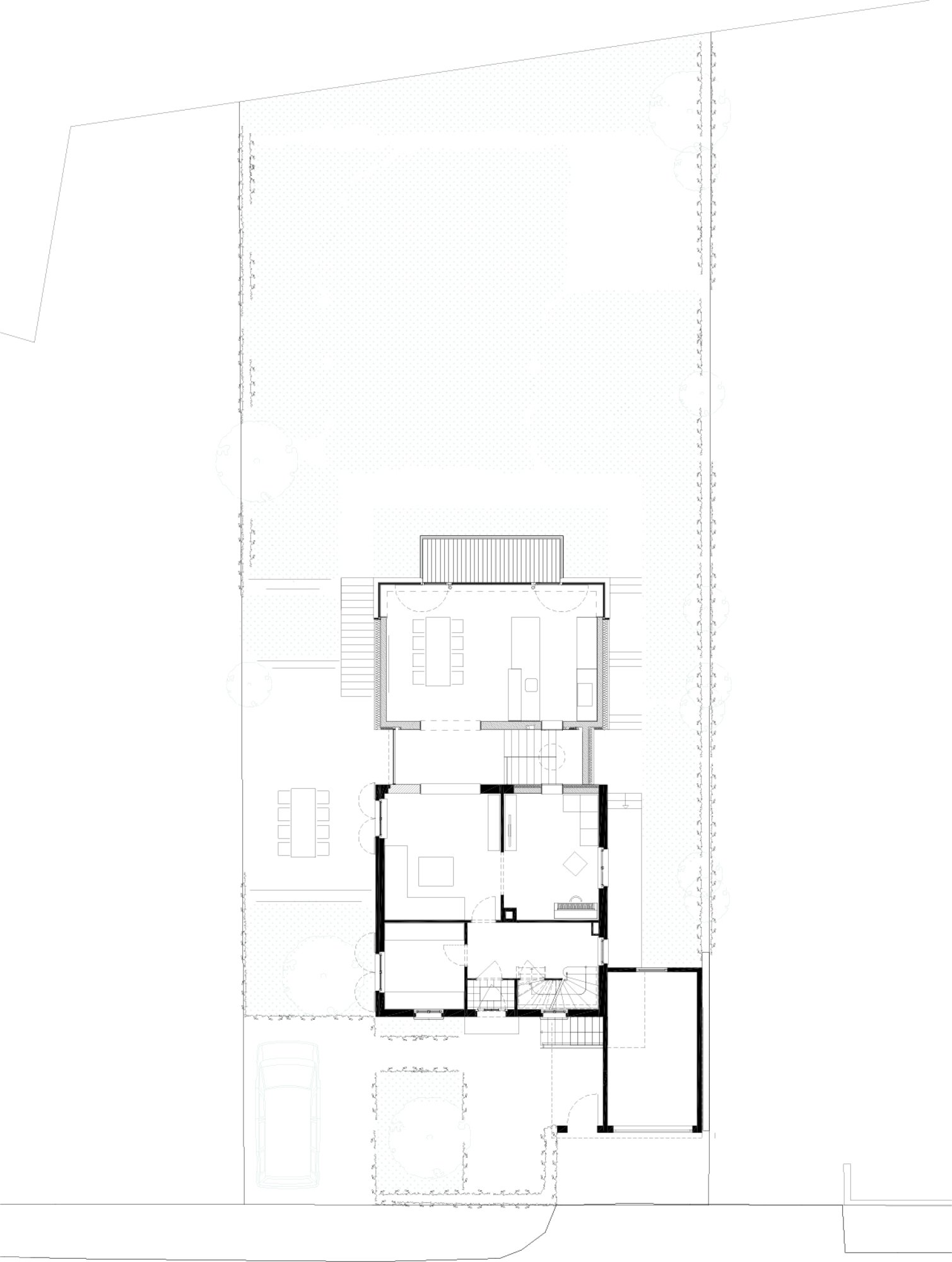
An ein traditionelles Steildachhaus der 30er Jahre wird eine kraftvolle zeitgenössische Erweiterung angebaut. Die introvertierten, schönen kleinteiligen Räume des Bestands werden so durch offene, helle Räume mit Landschaft – und Aussenraumbezug ergänzt. Ein neues innenliegendes Treppenhaus erschließt das Ganze und verbindet funktional Alt und Neu innen und außen.






