Einfamilienhaus Lörrach Stetten
Entwurf, Planung, Bauleitung: wilhelm und hovenbitzer und partner
Fertigstellung: 2011
Wohnfläche: 176 qm
Puplikationen: Hrsg. BDA Baden-Württemberg: “Architektur in Baden-Württemberg: Einfamilienhaus in Lörrach” Karl Krämer, Stuttgart 2012 / Lutz Windhöfel: “Architekturführer Basel, Anbau und Sanierung EFH Lörrach” Birkhäuser, Basel 2014
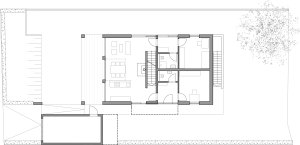
Das Einfamilienhaus für eine junge Familie ist nach Süden orientiert, im Norden komplett geschlossen, im Osten und Westen, mit Band-oder Lochfenstern versehen. Dies ergibt beste ökologische Werte. Das Haus hat 176 qm Wohnfläche, ist voll unterkellert und wurde inkl. Garage für 310.000 Euro realisiert.





